残り27,500円で送料無料になります。(※一部地域を除く)
カートは空です
Use this bar to show information about your cookie policy.
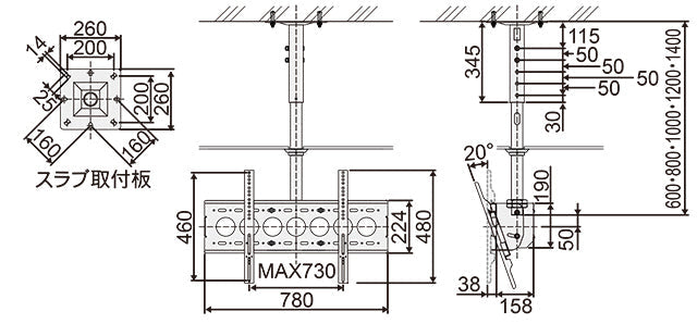
・大型天吊ハンガー、50~65型(65㎏まで) ・角度調整型 ・本体質量 15.5kg ・パイプセット長さ調整範囲:600,650,700,750 ・セット内容:壁掛金具、本体ベース、パイプ、スラブ取付板 ・ワンタッチロック機構
かゆいところに手が届くシンコネクトのプロ向けサポート
他社でお断りされた方もまずはご相談ください最大限の対応をいたします
「ここまでやってくれるの!?」と評判のシンコネクトのカスタマイズぜひ一度ご相談ください
映像・音響設備の設計施工を長年行なっているシンコネクトが対応安心してご依頼いただけます
※カスタムオーダーサービスをご利用の場合は送料を頂戴いたします。お見積書を必ずご確認ください。
送料について
全国(沖縄、離島を除く)
沖縄県・離島
※離島へのチャーター費用など発生する場合は別途実費を頂戴いたします。
返品
サポート
商品に関するお問い合わせなど、お気軽にご連絡ください。
営業時間
お問い合わせ先
お支払い